Beschrijving
DE LAATSTE APPARTEMENTEN TYPE DE JONGE KROON ZIJN NU WEER BESCHIKBAAR!! BOUW START BINNENKORT!
Ontdek Het Nieuwe Juvenaat: een uniek nieuwbouwproject waar historische charme en hedendaags comfort samenkomen. Gelegen op de gronden van het historische Juvenaat in Zevenaar, biedt de gloednieuwe noordvleugel ruimte aan 30 moderne koopappartementen. Een bijzondere woonlocatie, ideaal voor starters, gezinnen en senioren.
TYPE: DE JONGE KROON
Voor jong en oud. Of je nu een starter bent, een eenpersoonshuishouden hebt of gewoonweg voldoende hebt aan een compact maar zeer compleet appartement, de jonge kroon is de perfecte plek om je wooncarrière te starten of verder vorm te geven.
USP DE JONGE KROON:
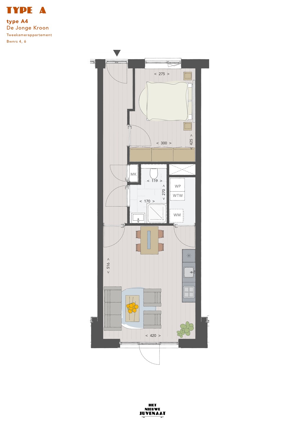
* Tweekamerappartement;
* Mooi centrale en goed ontsloten zichtlocatie;
* Veel licht en ruimte door grote raampartijen;
* Complete badkamer;
* Inclusief keukencheque t.w.v. € 3.000,-;
* Met of zonder balkon/terras;
* Gezamenlijke fietsenberging en een eigen berging in het bestaande Juvenaat;
* Gasloos wonen: verwarmen en koelen met een warmtepomp;
* Installatie warmtepomp/voorraadvat boiler lease ca. € 57,- per maand of afgekocht ca. € 9.200,-;
* Energiezuinig wonen, energielabel A+++;
* Optioneel privé-parkeerplaats € 15.000,-;
* Zelfbewoningsplicht en anti-speculatiebeding van toepassing.
De laatste nog beschikbare appartementen zijn:
Bouwnummer 1 - (A1) begane grond met terras - 49 m² - €286.500,- v.o.n. (verkocht onder voorbehoud)
Bouwnummer 4 - (A4) begane grond met terras - 51 m² - €287.500,- v.o.n. (verkocht onder voorbehoud)
Bouwnummer 5 - (A3) begane grond met terras - 48 m² - €282.500,- v.o.n. (verkocht onder voorbehoud)
Bouwnummer 10 - (A2) - 49 m² - €269.500,- v.o.n. (verkocht onder voorbehoud)
Bouwnummer 16 - (A2) - 49 m² - €269.500,- v.o.n. (verkocht onder voorbehoud)
De locatie
Gelegen te midden van de betoverende omgeving van Zevenaar, biedt Het Nieuwe Juvenaat een unieke woonervaring die doordrenkt is met geschiedenis en charme. Omringd door weelderig groen en een rijke culturele erfenis, ademt deze locatie een sfeer van rust en harmonie. Met zijn centrale ligging genieten bewoners van gemakkelijke toegang tot voorzieningen, zoals winkels, restaurants en recreatieve activiteiten, terwijl ze toch omgeven zijn door de rust van de natuur. Op slechts een steenworp afstand van het bruisende stadsleven, biedt Het Nieuwe Juvenaat een oase van sereniteit waar men kan ontsnappen aan de drukte van alledag. Of het nu gaat om een ontspannen wandeling door het nabijgelegen park, een verkenningstocht door de historische straten van Zevenaar, of gewoon genieten van het prachtige uitzicht vanuit het comfort van thuis, deze locatie biedt het beste van beide werelden.
Deze informatie is met veel zorg samengesteld. Het gerealiseerde plan kan afwijken van hetgeen eerder getoond, benoemd of aangegeven. Aan deze aanbieding, impressies, plattegronden en overige promotiemateriaal kunnen echter geen rechten en aansprakelijkheden worden ontleend.
Ontwikkeling & realisatie: Van Grunsven Groep
Verkoop & informatie: Mark Janssen Vastgoed Makelaars