Beschrijving
Welkom aan de Weverstraat 87 in Duiven!
Ruime hoekwoning met uitbouw, 5 slaapkamers en een groenrijke tuin.
Deze ruime hoekwoning met uitbouw biedt volop licht, leefruimte en comfort. Met maar liefst vijf slaapkamers, een moderne badkamer en op de begane grond vloerverwarming is dit de ideale gezinswoning. Geniet van de sfeervolle woonkamer met houtkachel en de zonnige, op het westen gelegen tuin. De woning bevindt zich in een groene en kindvriendelijke wijk, dicht bij alle voorzieningen van Duiven.
Indeling
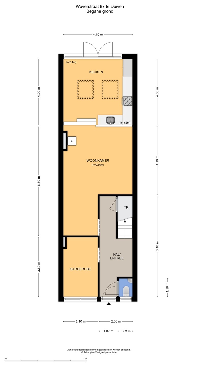
Begane grond:
Entree, ruime hal met moderne toiletruimte voorzien van zwevend toilet, meterkast en provisiekast. Vanuit de hal is een extra kamer bereikbaar die uitstekend geschikt is als kantoor, hobbyruimte of speelkamer.
De lichte en ruime woonkamer is voorzien van een nette laminaat, deels linoleum en een gezellige houtkachel. Dankzij de uitbouw geniet je hier van extra lichtinval en meer leefruimte.
De L-vormige keuken, uitgerust met diverse inbouwapparatuur, ligt één niveau lager dan de woonkamer. Via een klein trapje bereik je de keuken, wat zorgt voor een speels hoogteverschil en een uniek karakter aan de leefruimte. Via de openslaande deuren stap je direct de achtertuin in.
Eerste verdieping:
Overloop met toegang tot drie ruime slaapkamers en een tweede, separaat toilet. De luxe badkamer is modern uitgevoerd en voorzien van een ligbad, inloopdouche en stijlvol wastafelmeubel.
Tweede verdieping:
Via een vaste trap bereik je de tweede verdieping, waar een dakkapel zorgt voor extra licht en ruimte. Hier bevinden zich de vierde en vijfde slaapkamer en een praktische wasruimte met CV-opstelling.
Algemeen
* Bouwjaar: 1974;
* Woonoppervlakte: ca. 123,6 m²;
* Inhoud: ca. 433 m³;
* Perceeloppervlakte: 138 m²;
* Goed onderhouden, met moderne keuken, badkamer en sanitair;
* Energielabel C;
* CV-combiketel (lease), Atag 2022;
* Sfeervolle achtertuin;
* Gedeeltelijk voorzien van dubbel glas;
* Buitenschilderwerk volledig uitgevoerd in 2024;
* Vloerverwarming in woonkamer en keuken;
* Tuin op het westen;
* Vrijstaande stenen berging.
Vraagprijs: € 395.000,- k.k.
Aanvaarding: In overleg