Beschrijving
Nieuwbouwproject “Hof van Aalbers” Babberich
Wonen voor jong en oud in het mooie Babberich, nabij alle noodzakelijke voorzieningen en op korte afstand van het stadscentrum van Zevenaar.
Wie kent het niet, in Babberich en ver daarbuiten: Resto Aalbers! De locatie waar we bijna allemaal een keer hebben genoten van een schnitzel, een frietje of een overheerlijk ijsje, wordt getransformeerd tot 8 duurzame en moderne appartementen, gericht op starters en senioren. Alle begane grond woningen hebben een eigen tuin of terras en de woningen op de verdieping beschikken over een balkon of ruim dakterras. Elke woning heeft een eigen parkeerplaats (tegen meerprijs) en er is de mogelijkheid om er nog één bij te kopen. De woningen worden royaal opgeleverd inclusief badkamer en sanitair. Daarnaast hebben de kopers de vrijheid om zelf een keuken aan te schaffen waar zij dat willen.
Voordelen Hof van Aalbers:
* Betaalbare woningen voor onder andere starters en senioren in Babberich;
* Centrale ligging in het dorp en nabij centrum van Zevenaar;
* Levensloopbestendig wonen met tuin;
* Energiezuinige en gasloze woningen klaar voor de toekomst;
* Geheel getransformeerd en modern, dus klaar voor de toekomst;
* Lage energielasten dus goedkope maandlasten;
* Mogelijkheid tot aanvragen starterslening;
* Koop-/aanneemovereenkomst met afbouwborg garantie;
* Inclusief kosten voor overdracht bij de notaris!
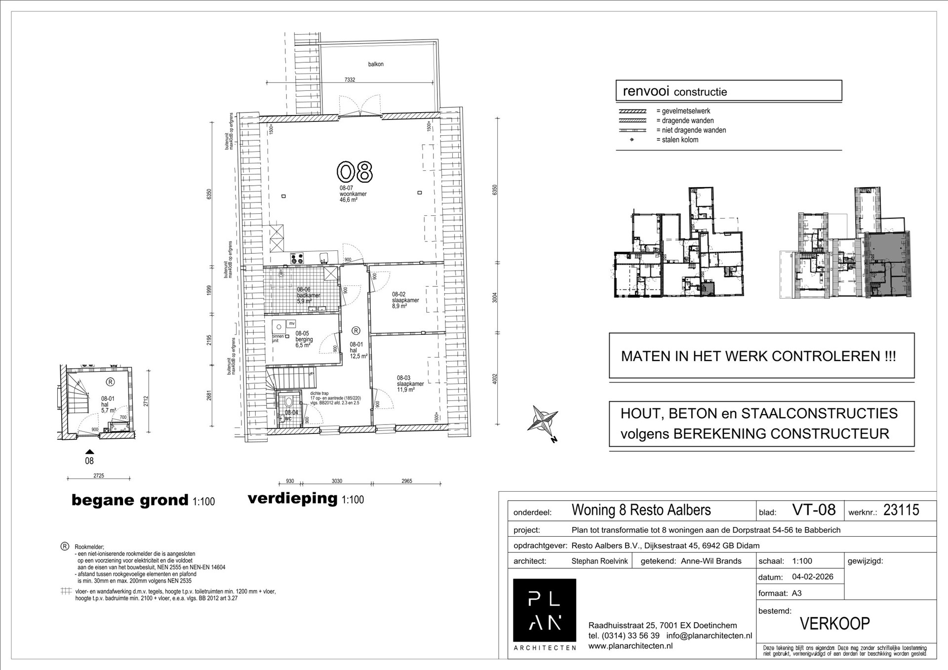
Kenmerken bouwnummer 8:
* Ligging: eerste verdieping;
* Gebruiksoppervlak: ca. 107m2;
* Groot dakterras: ca. 17m2;
* Eigen parkeerplaats (meerprijs € 11.500,-);
* Gezamenlijke fietsenberging;
* Inclusief badkamer en sanitair.
Prijs: € 425.000,- V.O.N.
Oplevering: prognose eind 2026
LET OP:
Inschrijven voor dit nieuwbouwproject kan tot en met 13 maart 2026. U dient een inschrijfformulier aan te vragen bij de makelaar en deze volledig ingevuld retour te mailen voor de sluitingsdatum. De eerste inschrijfperiode is NADRUKKELIJK bedoeld voor gegadigden die woonachtig zijn in Babberich of een aantoonbare economische, maatschappelijke of lokale binding hebben met Babberich. Na de eerste inschrijfperiode nodigen wij één ieder uit om in te schrijven op één van de woningen.
Deze informatie is met veel zorg samengesteld. Het gerealiseerde plan kan echter afwijken van hetgeen eerder getoond of aangegeven. Aan deze aanbieding kunnen geen rechten worden ontleend.
U kunt de stukken en het inschrijfformulier aanvragen door een mail te sturen naar Mark Janssen Vastgoed Makelaars.