Beschrijving

Goed onderhouden tussenwoning gelegen in het centrum van Zevenaar! Deze woning is ideaal geschikt voor starters of voor mensen die wat kleiner willen wonen en is gelegen op een perfecte locatie.

De woning is door de jaren heen goed onderhouden en met een energielabel B erg energiezuinig. De woning is voorzien van vloerisolatie (deels), zonnepanelen en de gevels zijn geïsoleerd. De uitbouw op de begane grond en de 3 ruime slaapkamers op de verdieping  maken de woning compleet.

Indeling

Begane grond:
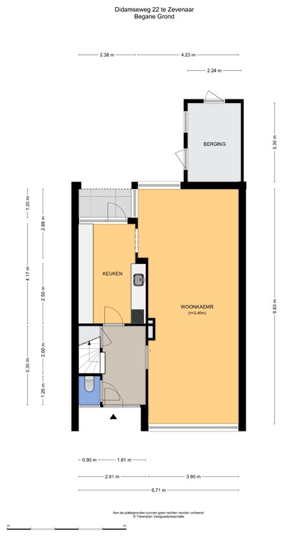
Entree, binnenkomsthal met trapkast/meterkast, toiletruimte met zwevend toilet, uitgebouwde, doorzonwoonkamer voorzien van elektrische haard, dichte keuken met rechte keukenopstelling voorzien van diverse inbouwapparatuur. Fraai aangelegde achtertuin gelegen op het Zuidoosten met aangebouwde stenenberging, tuinhuis en achterom.

Eerste verdieping:
Overloop, 3 slaapkamers waarvan 1 voorzien van inbouwkasten en 1 voorzien van balkon, badkamer met douche, toilet, vaste wastafel en wasmachineaansluiting.

Algemeen:
* Bouwjaar: 1963;
* Gebruiksoppervlak wonen (NEN2580): ca. 106m2;
* Inhoud: ca. 380m3;
* Perceeloppervlak: 	210m²;
* Voorzien van muur- en vloerisolatie, HR++-isolatieglas;
* Voorzien van zonnepanel (ca. 10m2);
* Verwarming en warm water middels CV-combiketel (2024);
* Gunstig energielabel B;
* Goed onderhouden en afgewerkte voorzieningen zoals keuken, badkamer en sanitair;
* Deels voorzien van kunststof kozijnen en rolluiken;
* Extra artikelen (o.a. niet zelfbewoningsclausule) in koopovereenkomst; 
* Goed onderhouden woning gelegen in het centrum van Zevenaar!

Vraagprijs: € 325.000,- k.k.
Aanvaarding: In overleg

Zevenaar:
Wonen in Zevenaar betekent wonen met een dorpskarakter maar toch in de grote stad. Zevenaar heeft werkelijk alles wat u wenst om optimaal van het leven te kunnen genieten. Of het nu gaat om supermarkten, winkels, restaurants of cafés, Zevenaar heeft het! Ook is er een Theater en voor de liefhebber een filmhuis. In de (nabije) toekomst wordt er aan de rand van Zevenaar een (internationaal) outletcenter gerealiseerd en door de doortrekking van de A15 zal Zevenaar nog centraler gelegen zijn. Grote steden zoals Arnhem, Doetinchem en Nijmegen zijn binnen 30 minuten bereikbaar.

Kenmerken