Beschrijving

Zoek jij een comfortabele woning in een rustige en groene omgeving?

In het sfeervolle Herwen, één van de zes dorpen op ’t Gelders Eiland, ligt deze goed onderhouden 2-onder-1-kapwoning. De woning beschikt over een eigen oprit, veel bergruimte en is onder andere voorzien van 9 zonnepanelen.

Indeling

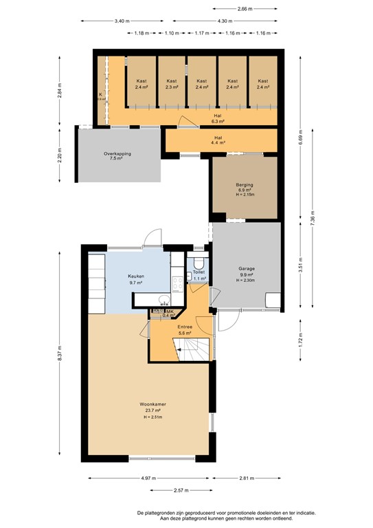
Begane grond:
Ruime entree met trapopgang, toiletruimte, meterkast en deur naar garage en schuur. De gezellige woonkamer is heerlijk licht en afgewerkt met een laminaatvloer en voorzien van airconditioning. De keuken is uitgevoerd in een praktische L-opstelling en beschikt over een inductiekookplaat, magnetron en diverse kastruimte. Daarnaast is er een rechte kastenwand (2025) met oven, vriezer en extra koelkast wat zorgt voor volop bergruimte. Via de keuken bereik je de achtertuin met overkapping, gelegen op het zuidwesten. 

Eerste verdieping:
Via de overloop bereik je drie slaapkamers, die allemaal zijn uitgerust met rolluiken en een laminaatvloer. De badkamer is uitgerust met een inloopdouche, wastafelmeubel en wasmachineaansluiting.

Tweede verdieping:
Via een vaste trap bereik je de ruime zolderverdieping met een cv-ketel opstelling. Deze biedt volop opbergruimte en de mogelijkheid tot het realiseren van een extra slaapkamer. 

Algemeen:
* Bouwjaar: 1989;
* Woonoppervlak: ca. 105 m2;
* Inhoud: ca 520m2;
* Perceeloppervlakte 195m2;
* Energielabel B;
* 9 zonnepanelen (2023);
* Eigen oprit;
* Voorzien van rolluiken;
* Cv-ketel Nefit Topline (2011);
* Airco woonkamer (2022);
* Tuin op het zuidwesten met overkapping
* Garage en schuur aanwezig met extra veel opbergruimte

Vraagprijs € 395.000,- k.k.
Aanvaarding: in overleg

Herwen:
Herwen is een charmant dorp in de gemeente Zevenaar, gelegen op het prachtige Gelders Eiland in de streek De Liemers. De omgeving staat bekend om haar rustige, landelijke karakter en de unieke ligging nabij de Rijn en natuurgebied de Gelderse Poort. Hier geniet je van uiterwaarden, dijken en weidse vergezichten, met volop mogelijkheden om te wandelen en fietsen. Op korte afstand ligt recreatieplas De Bijland, waar je kunt zwemmen, surfen, zeilen en waterskiën. Herwen beschikt bovendien over een basisschool en een supermarkt, wat het dorp aantrekkelijk maakt voor gezinnen. Met goede verbindingen richting Arnhem en Duitsland is de ligging zeer praktisch voor woon-werkverkeer.

Kenmerken